Статьи
Внесен ряд изменений в Градостроительный кодекс РФ
18 сентября 2011, 11:34 Категория: Строительство
Федеральным законом от 18 июля 2011 года N 224-ФЗ "О внесении изменений в статьи 51 и 56 Градостроительного кодекса РФ и отдельные законодательные акты РФ" внесены изменения в положения, касающиеся получения разрешений на строительство.
В документе перечисляются органы власти, которые дают такие разрешения для объектов капитального строительства на участке в особой экономической зоне, участке недр, для объектов использования атомной энергии, гидротехнических сооружений первого и второго классов, аэропортов, объектов культурного наследия и других объектов.
Также перечислены органы власти, которые выдают разрешения на участки, расположенные на территории двух и более субъектов РФ, муниципальных образований, поселений.
Дается перечень случаев, когда прекращается действие разрешения на строительство объектов, связанных с разработкой, изготовлением, утилизацией ядерного оружия и ядерных энергетических установок военного назначения. В документе перечисляются органы власти, которые дают такие разрешения для объектов капитального строительства на участке в особой экономической зоне, участке недр, для объектов использования атомной энергии, гидротехнических сооружений первого и второго классов, аэропортов, объектов культурного наследия и других объектов. Также перечислены органы власти, которые выдают разрешения на участки, расположенные на территории двух и более субъектов РФ, муниципальных образований, поселений. Дается перечень случаев, когда прекращается действие разрешения на строительство объектов, связанных с разработкой, изготовлением, утилизацией ядерного оружия и ядерных энергетических установок военного назначения. В случае образования земельных участков путем раздела, перераспределения земельных участков или выдела из земельных участков, в отношении которых выдано разрешение на строительство, физическое или юридическое лицо, у которого возникло право на образованные земельные участки, вправе осуществлять строительство на таких земельных участках на условиях, содержащихся в указанном разрешении на строительство, с соблюдением требований к размещению объектов капитального строительства, установленных в соответствии с законодательством. В этом случае требуется получение градостроительного плана образованного земельного участка, на котором планируется осуществлять строительство, реконструкцию объекта капитального строительства. Ранее выданный градостроительный план земельного участка, из которого образованы земельные участки путем раздела, перераспределения земельных участков или выдела из земельных участков, утрачивает силу со дня выдачи градостроительного плана на один из образованных земельных участков. Федеральный закон вступает в силу со дня официального опубликования. Нормы о прекращении разрешения для атомных объектов, о правах работать на основе ранее выданных разрешений, об уведомлениях вступают в силу с 1 октября 2011 года. Федеральный закон от 18 июля 2011 года N 243-ФЗ "О внесении изменений в Градостроительный кодекс РФ и отдельные законодательные акты РФ" дополнил положения Кодекса, касающиеся архитектурно-строительного проектирования. Установлено, что в случае проведения капитального ремонта объектов капитального строительства осуществляется подготовка отдельных разделов проектной документации на основании задания застройщика или заказчика в зависимости от содержания работ, выполняемых при капитальном ремонте объектов капитального строительства. Установлено, что государственная экспертиза проектной документации не проводится в отношении разделов проектной документации, подготовленных для проведения капитального ремонта объектов капитального строительства, за исключением проектной документации, подготовленной для проведения капитального ремонта автомобильных дорог общего пользования. Также внесены изменения в ряд нормативных актов, в которых слова "капитальное строительство" заменены на "объекты строительства". Федеральный закон вступает в силу с момента официального опубликования. Источник газета "Строй-info" выпуск №9, сентябрь 2011 г. Внесен ряд изменений в Градостроительный кодекс РФ
Федеральным законом от 18 июля 2011 года N 224-ФЗ "О внесении изменений в статьи 51 и 56 Градостроительного кодекса РФ и отдельные законодательные акты РФ" внесены изменения в положения, касающиеся получения разрешений на строительство.
Усилены меры административной ответственности за нарушения обязательных требований в области технического регулирования
18 августа 2011, 10:37 Категория: Строительство
Федеральным законом от 18 июля 2011 года N 237-ФЗ внесены изменения в Кодекс Российской Федерации об административных правонарушениях.
В частности, усилена административная ответственность за нарушение обязательных требований в области строительства и применения строительных материалов.
Так, нарушение требований технических регламентов, проектной документации, обязательных требований документов в области стандартизации или требований специальных технических условий повлечет наложение штрафа на граждан в размере от 1000 до 2000 рублей (ранее - от 500 до 1000 рублей), на юридических лиц - от 100000 до 300000 рублей.
Если же нарушения повлекли отступление от проектных значений параметров зданий и сооружений, а так же затрагивают характеристики надежности и безопасности объектов строительства, либо данные нарушения стали причиной причинение вреда жизни или здоровью граждан, имуществу физических или юридических лиц, окружающей среде, либо создали угрозу причинения такого вреда, то подобные нарушения влекут наложение штрафа в размере:
- от 2000 до 4000 тысяч рублей (физ. лица);
- от 30000 до 35000 тысяч рублей (юр. лица);
- на лиц, осуществляющих предпринимательскую деятельность без образования юридического лица, - от 35000 до 40000 тысяч рублей либо административное приостановление деятельности на срок до 60 суток; В частности, усилена административная ответственность за нарушение обязательных требований в области строительства и применения строительных материалов. Так, нарушение требований технических регламентов, проектной документации, обязательных требований документов в области стандартизации или требований специальных технических условий повлечет наложение штрафа на граждан в размере от 1000 до 2000 рублей (ранее - от 500 до 1000 рублей), на юридических лиц - от 100000 до 300000 рублей. Если же нарушения повлекли отступление от проектных значений параметров зданий и сооружений, а так же затрагивают характеристики надежности и безопасности объектов строительства, либо данные нарушения стали причиной причинение вреда жизни или здоровью граждан, имуществу физических или юридических лиц, окружающей среде, либо создали угрозу причинения такого вреда, то подобные нарушения влекут наложение штрафа в размере: - от 2000 до 4000 тысяч рублей (физ. лица); - от 30000 до 35000 тысяч рублей (юр. лица); - на лиц, осуществляющих предпринимательскую деятельность без образования юридического лица, - от 35000 до 40000 тысяч рублей либо административное приостановление деятельности на срок до 60 суток; - на юридических лиц - от 300000 до 600000 тысяч рублей, либо административное приостановление деятельности на срок до шестидесяти суток. Продажа товаров, выполнение работ либо оказание населению услуг ненадлежащего качества повлечет штраф с граждан в размере от 1000 до 2000 рублей (в прежней редакции - от 1000 до 1500 рублей). Кроме того, Кодекс РФ об административных правонарушениях дополнен новыми статьями, предусматривающими ответственность, в том числе за: - нарушение изготовителем, исполнителем, продавцом требований технических регламентов (для граждан от 1000 до 2000 рублей; для должностных лиц - от 10000 до 20000 рублей); - недостоверное декларирование соответствия продукции (для должностных лиц в размере от 15000 до 25000 рублей; для юридических лиц - от 100000 до 300000 рублей); - нарушение порядка реализации (маркировки) продукции, подлежащей обязательному подтверждению соответствия (для должностных лиц в размере от 20,000 до 40000 рублей; для юридических лиц - от 100000 до 300000 рублей); - нарушение правил выполнения работ по сертификации (для должностных лиц в размере от 20000 до 40000 рублей или дисквалификацию на срок до 1 года; для юридических лиц - от 400000 до 500000 тысяч рублей); - представление недостоверных результатов исследований (испытаний)- (для должностных лиц в размере от 30000 до 15000 рублей либо дисквалификацию на срок от 1 года до 3 лет; для юридических лиц - от 400000 до 500000 тысяч рублей); - нарушение обязательных требований в отношении оборонной продукции (выполняемых работ, оказываемых услуг)- (для должностных лиц в размере от 40000 до 50000 рублей; для юридических лиц - от 700000 до 1000000 рублей). - невыполнение требований о представлении образцов продукции, документов или сведений, необходимых для осуществления государственного контроля в сфере технического регулирования (для должностных лиц в размере от 40000 до 50000 рублей; для юридических лиц - от 200000 до 300000 рублей). В отдельных случаях предусмотрена дисквалификация на срок до 1 года. Если некоторые нарушения совершаются повторно в течение года, санкция увеличивается. Также предусмотрена возможность конфисковать товар. Кроме того, законом уточнена компетенция по составлению протоколов и рассмотрению дел об административных правонарушениях в соответствующей сфере. Усилена административная ответственность за нарушение законодательства об обеспечении единства измерений. Закон вступает в силу по истечении 180 дней после дня его официального опубликования. Усилены меры административной ответственности за нарушения обязательных требований в области технического регулирования
Федеральным законом от 18 июля 2011 года N 237-ФЗ внесены изменения в Кодекс Российской Федерации об административных правонарушениях.
Источник газета "Строй-info" выпуск №8, август 2011 г.
Ратифицировано Соглашение о техническом регулировании в Таможенном союзе и проект Соглашения о единых принципах и правилах технического регулирования в строительстве в государствах-участниках СНГ
18 августа 2011, 09:59 Категория: Строительство
Федеральным законом от 27 июня 2011 года N 152-ФЗ ратифицировано Соглашение о единых принципах и правилах технического регулирования в Республике Беларусь, Республике Казахстан и Российской Федерации, подписанное в городе Санкт-Петербурге 18 ноября 2010 года. В соответствии с Соглашением Стороны обязались проводить согласованную политику в области технического регулирования. В целях формирования нормативной правовой базы Таможенного союза в области технического регулирования Стороны формируют единый перечень продукции, в отношении которой устанавливаются обязательные требования в рамках Таможенного союза. При этом Стороны не допускают установление в своем законодательстве обязательных требований в отношении продукции, не включенной в единый перечень.
Установлено, что технические регламенты Таможенного союза имеют прямое действие на таможенной территории Таможенного союза и действуют до принятия технического регламента Евразийского экономического сообщества. При этом со дня вступления в силу технического регламента Таможенного союза на территориях Сторон соответствующие национальные обязательные требования не применяются. Порядок разработки, принятия, внесения изменений и отмены технических регламентов Таможенного союза устанавливается Комиссией Таможенного союза. Установлено, что технические регламенты Таможенного союза имеют прямое действие на таможенной территории Таможенного союза и действуют до принятия технического регламента Евразийского экономического сообщества. При этом со дня вступления в силу технического регламента Таможенного союза на территориях Сторон соответствующие национальные обязательные требования не применяются. Порядок разработки, принятия, внесения изменений и отмены технических регламентов Таможенного союза устанавливается Комиссией Таможенного союза. Технические регламенты Таможенного союза разрабатываются только в отношении продукции, включенной в единый перечень. В технических регламентах Таможенного союза устанавливаются требования к продукции либо к продукции и связанным с требованиями к продукции процессам производства, монтажа, наладки, эксплуатации (использования), хранения, перевозки (транспортирования), реализации и утилизации, а также правила идентификации, формы, схемы и процедуры оценки (подтверждения) соответствия. Кроме того, в техническом регламенте Таможенного союза также могут содержаться требования к терминологии, упаковке, маркировке, этикеткам и правилам их нанесения, санитарные, ветеринарно-санитарные и фитосанитарные требования и процедуры, а также специфические требования, отражающие особенности, связанные с климатическими и географическими факторами Сторон или технологическими особенностями, и действующие только на территориях Сторон. Стороны обеспечивают обращение продукции, соответствующей требованиям технических регламентов Таможенного союза, на своей территории без предъявления дополнительных требований к такой продукции и без проведения дополнительных процедур оценки (подтверждения) соответствия. Для продукции, включенной в единый перечень, в отношении которой не вступили в силу технические регламенты Таможенного союза или технические регламенты Евразийского экономического сообщества, действуют нормы законодательства Таможенного союза и национальных законодательств в сфере технического регулирования. Государственный контроль (надзор) за соблюдением требований технических регламентов Таможенного союза, ответственность за несоблюдение их требований, а также за нарушение процедур проведения оценки (подтверждения) соответствия продукции устанавливается в соответствии с национальным законодательством Сторон. Источник газета "Строй-info" выпуск №7, июль 2011 г. Ратифицировано Соглашение о техническом регулировании в Таможенном союзе и проект Соглашения о единых принципах и правилах технического регулирования в строительстве в государствах-участниках СНГ
Федеральным законом от 27 июня 2011 года N 152-ФЗ ратифицировано Соглашение о единых принципах и правилах технического регулирования в Республике Беларусь, Республике Казахстан и Российской Федерации, подписанное в городе Санкт-Петербурге 18 ноября 2010 года. В соответствии с Соглашением Стороны обязались проводить согласованную политику в области технического регулирования. В целях формирования нормативной правовой базы Таможенного союза в области технического регулирования Стороны формируют единый перечень продукции, в отношении которой устанавливаются обязательные требования в рамках Таможенного союза. При этом Стороны не допускают установление в своем законодательстве обязательных требований в отношении продукции, не включенной в единый перечень.
Анонс ТИПОВАЯ ТЕХНОЛОГИЧЕСКАЯ КАРТА
17 июля 2011, 16:28 Категория: Строительство
ТИПОВАЯ ТЕХНОЛОГИЧЕСКАЯ КАРТА
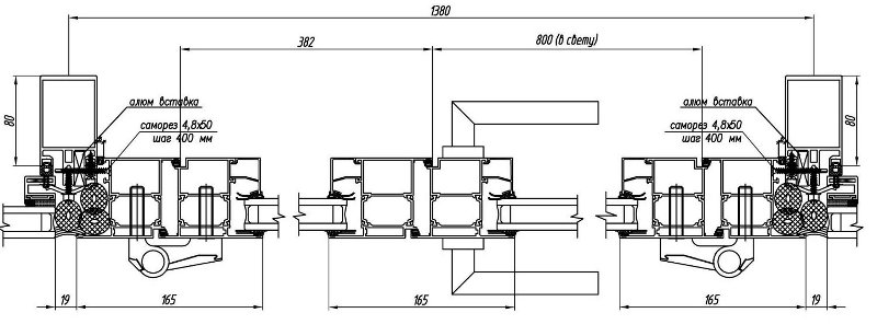
Монтаж светопрозрачных конструкций
1.Общая часть
Данная технологическая карта разработана на монтаж светопрозрачных конструкций на объекте: Реконструкция производственного здания с надстройкой 5-го этажа и одноэтажной пристройкой складского назначения.
Технологическая карта не распространяется на узлы примыканий специального назначения (противопожарных, взрывозащитных), а также изделий, предназначенных для применения в не отапливаемых помещениях.
2.Требования к оконным блокам, поступающим на объект
Изделия должны соответствовать требованиям ГОСТ 24699-2002, ГОСТ 23166-99, ГОСТ 24700-99 и изготавливаться по конструкторской и технологической документации, утвержденной в установленном порядке.
Рамочные элементы оконных блоков и их детали должны иметь правильную геометрическую форму. Предельные отклонения номинальных размеров сопрягаемых элементов изделий, зазоров в притворах и под наплавом, размеров расположения оконных приборов и петель не должны превышать значений, установленных в таблице 1.
Анонс ТИПОВАЯ ТЕХНОЛОГИЧЕСКАЯ КАРТА
ТИПОВАЯ ТЕХНОЛОГИЧЕСКАЯ КАРТА
Монтаж светопрозрачных конструкций
1.Общая часть
Данная технологическая карта разработана на монтаж светопрозрачных конструкций на объекте: Реконструкция производственного здания с надстройкой 5-го этажа и одноэтажной пристройкой складского назначения.
Технологическая карта не распространяется на узлы примыканий специального назначения (противопожарных, взрывозащитных), а также изделий, предназначенных для применения в не отапливаемых помещениях.
2.Требования к оконным блокам, поступающим на объект
Изделия должны соответствовать требованиям ГОСТ 24699-2002, ГОСТ 23166-99, ГОСТ 24700-99 и изготавливаться по конструкторской и технологической документации, утвержденной в установленном порядке.
Рамочные элементы оконных блоков и их детали должны иметь правильную геометрическую форму. Предельные отклонения номинальных размеров сопрягаемых элементов изделий, зазоров в притворах и под наплавом, размеров расположения оконных приборов и петель не должны превышать значений, установленных в таблице 1.
Таблица№1
|
Размерный интервал |
Предельные отклонения номинальных размеров |
||||
|
Внутренний размер коробок |
Наружный размер створок |
Зазор в притворе (фальцлюфт) |
Зазор под наплавом |
Размеры расположения приборов и петель |
|
|
До 1000 |
± 1,0 |
-1,0 |
±0,5 |
+ 1,0 |
± 1,0 |
|
От 1000 до 2000 |
+2,0-1,0 |
± 1,0 |
+1,0-0,5 |
||
|
Св. 2000 |
+2,0-1,0 |
+ 1,0-2,0 |
+ 1,5-0,5 |
||
|
|||||
Требования к комплектующим деталям и их установке
Материалы и комплектующие детали, применяемые для изготовления оконных блоков, должны соответствовать требованиям стандартов, технических условий, технических свидетельств, утвержденных в установленном порядке.
Основные комплектующие детали изделий: ПВХ профили, стеклопакеты, уплотняющие прокладки, оконные приборы должны быть испытаны на долговечность (безотказность) в испытательных центрах, аккредитованных на право проведения таких испытаний.
Требования к ПВХ профилям
Поливинилхлоридные профили должны изготавливаться из жесткого непластифицированного, модифицированного на высокую ударную вязкость и стойкость к климатическим воздействиям поливинилхлорида, и отвечать требованиям ГОСТ 30673-99, а также техническим условиям на конкретные системы профилей, утвержденных в установленном порядке.
Изогнутые профили не должны иметь отклонений от формы (коробление, волнистость), превышающих по ширине и высоте профиля (±1,5) мм. Рекомендуемый минимальный радиус гибки для белых ПВХ профилей следует принимать равным пятикратной ширине профиля, для других профилей - 5,5 ширины профиля.
Для остекления изделий применяют одно или двухкамерные стеклопакеты по ГОСТ 24866-99, стекло по ГОСТ 111-2001, а также по нормативной документации на конкретные виды светопрозрачного заполнения оконных блоков.
Для повышения архитектурной выразительности допускается установка декоративных раскладок (горбыльков) на наружные поверхности стеклопакетов на атмосферостойких клеях или применение стеклопакетов с внутренней рамкой.
Стеклопакеты (стекла) устанавливают в фальц створки или коробки на подкладках, исключающих касание кромок стеклопакета (стекла) внутренних поверхностей фальцев ПВХ профилей.

Источник газета "Строй-info" выпуск №6, июнь 2011 г.
