
Вы нашли документ, содержащийся в электронной базе документов - "ТЕХЭКСПЕРТ"!
Подъемник строительный РПС-0,32-17
ПОДЪЕМНИК СТРОИТЕЛЬНЫЙ РПС-0,32-17
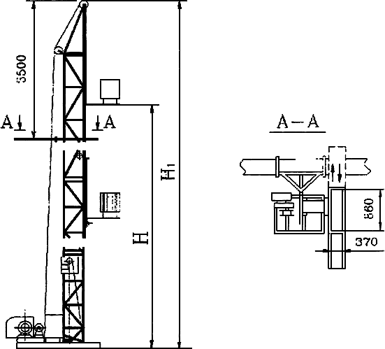
Подъемник (рис.1) предназначен для подъема строительных материалов, горизонтальной подачи их внутрь проходов зданий.
Рис.1. Подъемник РПС-0,32-17
Подъемник РПС-0,32-17 выпускается в шести исполнениях: РПС-0,32-17; РПС-0,32-17-1; РПС-0,32-17-2; РПС-0,32-17А; РПС-0,32-17А-2; РПС-0,32-17А-3.
Подъемник предназначен для эксплуатации при температуре окружающего воздуха от -40 до +40 °С в I-V ветровых районах по ГОСТ 1451.
Технические характеристики подъемника РПС-0,32-17 и его модернизации
Таблица 1
Скачать документ нельзя - можно заказать Бесплатно! 1 документ
Документ будет отправлен на указанный Вами e-mail в течение 3 рабочих дней*
Часы работы: с Пн по Пт с 8:30 до 17:30 по московскому времени.
или
Посмотреть возможности крупнейшей электронной библиотеки "Техэксперт" - более 8 000 000 документов!



