
Вы нашли документ, содержащийся в электронной базе документов - "ТЕХЭКСПЕРТ"!
Кран козловой электрический двухтележечный грузоподъемностью 12,5+12,5 т
КРАН КОЗЛОВОЙ ЭЛЕКТРИЧЕСКИЙ ДВУХТЕЛЕЖЕЧНЫЙ
ГРУЗОПОДЪЕМНОСТЬЮ 12,5+12,5 т
Код ОКП 31 5531
Кран предназначен для эпизодической работы с контейнерами на станциях с малым грузооборотом.
Работает со спредером, с траверсой - с длинномерными грузами.
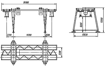
Пролетное строение крана (рис.1) состоит из четырех главных балок, выполненных из двутавров, соединенных по концам консолей двутавровыми концевыми балками. Главные балки подвешены и приварены электродуговой сваркой к четырем поперечным ригелям, также выполненным из двутавров.
Рис.1. Кран козловой электрический двухтележечный грузоподъемностью 12,5+12,5 т
Скачать документ нельзя - можно заказать Бесплатно! 1 документ
Документ будет отправлен на указанный Вами e-mail в течение 3 рабочих дней*
Часы работы: с Пн по Пт с 8:30 до 17:30 по московскому времени.
или
Посмотреть возможности крупнейшей электронной библиотеки "Техэксперт" - более 8 000 000 документов!



