
Вы нашли документ, содержащийся в электронной базе документов - "ТЕХЭКСПЕРТ"!
Кран козловой электрический контейнерный грузоподъемностью 24/30,5 т КК-24/30,5
КРАН КОЗЛОВОЙ ЭЛЕКТРИЧЕСКИЙ КОНТЕЙНЕРНЫЙ
ГРУЗОПОДЪЕМНОСТЬЮ 24/30,5 т КК-24/30,5
Код ОКП 31 5533 1001
Кран предназначен для перегрузки контейнеров на железнодорожных станциях и заводских контейнерных площадках.
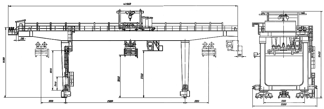
Металлическая конструкция крана (рис.1) состоит из пролетного строения в виде двух главных балок, соединенных болтовыми фланцевыми стыками с двумя концевыми балками и образующих жесткую замкнутую конструкцию. Главные балки в пролете имеют постоянное коробчатое поперечное сечение, на консолях - переменное.
Рис.1. Кран козловой электрический контейнерный грузоподъемностью 24/30,5 т КК-24/30,5
Главные балки опираются на опоры, выполненные в виде порталов коробчатого поперечного сечения. Они заужены книзу и крепятся к главным балкам и нижнему опорному порталу фланцами на болтах. С балансирами ходовой части крана опоры соединяются шарнирно. Каждый балансир шарнирно связан с двумя двухколесными приводными ходовыми тележками, одна из которых имеет индивидуальные приводы на оба колеса, а другая - на одно. На одной из опор установлена лестница.
Скачать документ нельзя - можно заказать Бесплатно! 1 документ
Документ будет отправлен на указанный Вами e-mail в течение 3 рабочих дней*
Часы работы: с Пн по Пт с 8:30 до 17:30 по московскому времени.
или
Посмотреть возможности крупнейшей электронной библиотеки "Техэксперт" - более 8 000 000 документов!



