
Вы нашли документ, содержащийся в электронной базе документов - "ТЕХЭКСПЕРТ"!
Кран башенный LIEBHERR 100LG (120НС)
Данный раздел/документ содержится в продуктах:
КРАН БАШЕННЫЙ LIEBHERR 100LG (120НС)
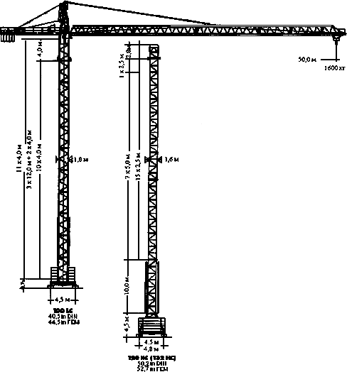
Кран предназначен для механизации строительства высотных зданий. Кран с неповоротной башней, верхним положением противовеса, нижним расположением балласта и балочной стрелой. Максимальная высота подъема груза 52 м, максимальный вылет - 50 м. Грузоподъемность при максимальном вылете 1,4 т (1,6 т), максимальная грузоподъемность - 6 т. Ходовая часть выполнена на стационарных тележках с опорным контуром 4,5 м.
Рис.1. Кран LIEBHERR 100LG (120HC)
Рис.2. Кран LIEBHERR 100LG (120HC)
Грузовысотные характеристики крана LIEBHERR 100LG (120НС)
Скачать документ нельзя - можно заказать Бесплатно! 1 документ
Документ будет отправлен на указанный Вами e-mail в течение 3 рабочих дней*
Часы работы: с Пн по Пт с 8:30 до 17:30 по московскому времени.
или
Посмотреть возможности крупнейшей электронной библиотеки "Техэксперт" - более 8 000 000 документов!



