
Вы нашли документ, содержащийся в электронной базе документов - "ТЕХЭКСПЕРТ"!
Реечная вентилируемая фасадная система БАРД (чертежи узлов)
РЕЕЧНАЯ ВЕНТИЛИРУЕМАЯ ФАСАДНАЯ СИСТЕМА
БАРД
Фрагменты фасадов и крепления реек ФВР при вертикальной раскладке
Рис.1. Фрагмент фасада при вертикальной раскладке реек
Оформление дверных проемов аналогично оформлению оконных проемов.
Рис.2. Фрагмент фасада при вертикальной раскладке реек со скатной крышей
Оформление дверных проемов аналогично оформлению оконных проемов.
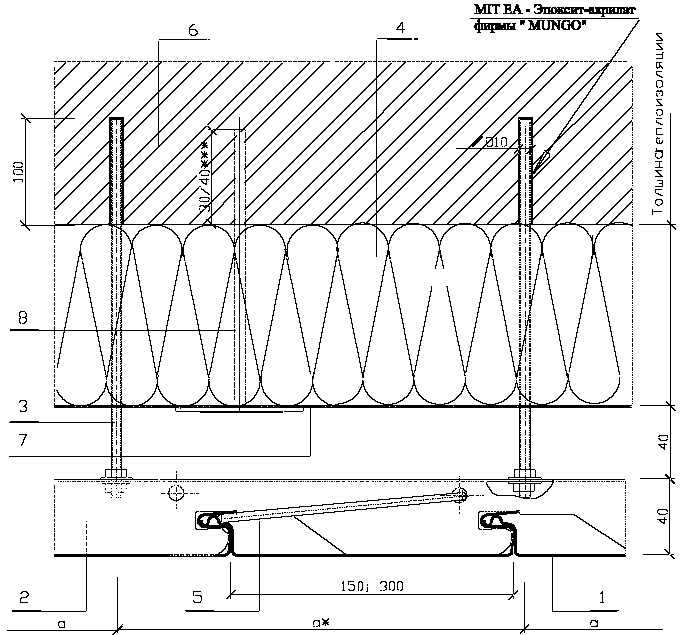
Узел 1. Поле при вертикальной раскладке реек
Скачать документ нельзя - можно заказать Бесплатно! 1 документ
Документ будет отправлен на указанный Вами e-mail в течение 3 рабочих дней*
Часы работы: с Пн по Пт с 8:30 до 17:30 по московскому времени.
или
Посмотреть возможности крупнейшей электронной библиотеки "Техэксперт" - более 8 000 000 документов!



