
Вы нашли документ, содержащийся в электронной базе документов - "ТЕХЭКСПЕРТ"!
Проект здания двухэтажного с мансардой, без подвала "Валентина"
"ВАЛЕНТИНА"
Здание двухэтажное с мансардой, без подвала. Фундаменты - мелкозаглубленные монолитные железобетонные ленточные. Основные несущие конструкции - термоструктурные стеновые панели. Внутренние стены и перегородки - из термоструктурных панелей. Перекрытие деревянные фермы. Кровля двухскатная.
Общая площадь 598,80 м, стоимость комплекта панелей 1718274,10 руб.
Жилой дом "Валентина"
Перспектива
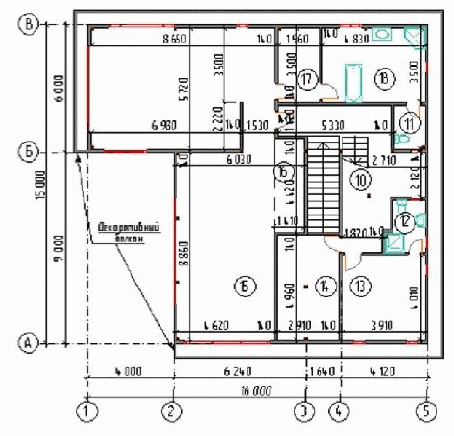
План 1-го этажа
План 2-го этажа
Скачать документ нельзя - можно заказать Бесплатно! 1 документ
Документ будет отправлен на указанный Вами e-mail в течение 3 рабочих дней*
Часы работы: с Пн по Пт с 8:30 до 17:30 по московскому времени.
или
Посмотреть возможности крупнейшей электронной библиотеки "Техэксперт" - более 8 000 000 документов!



