
Вы нашли документ, содержащийся в электронной базе документов - "ТЕХЭКСПЕРТ"!
Изменение N 1 ГОСТ 17508-85 Рельсы остряковые ОР50. Размеры
Данный раздел/документ содержится в продуктах:
- Техэксперт: Охрана труда
- Авиатор
- Техэксперт: Эксплуатация зданий
- Техэксперт: Экология. Проф
- Техэксперт: Нормы, правила, стандарты и законодательство России
- Техэксперт: Нефтегазовый комплекс
- Техэксперт: Машиностроительный комплекс
- Техэксперт: Пожарная безопасность
- Техэксперт: Промышленная безопасность
ИЗМЕНЕНИЕ N 1
ГОСТ 17508-85 "Рельсы остряковые ОР50. Размеры"
Дата введения 1991-07-01
УТВЕРЖДЕНО И ВВЕДЕНО В ДЕЙСТВИЕ Постановлением Государственного комитета СССР по управлению качеством продукции и стандартам от 28.09.90 N 2582
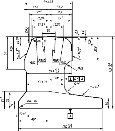
Пункт 2. Первый абзац изложить в новой редакции: "Размеры поперечного сечения рельсов должны соответствовать указанным на чертеже";
чертеж 1 заменить новым:
________________
* Размеры для справок.
Скачать документ нельзя - можно заказать Бесплатно! 1 документ
Документ будет отправлен на указанный Вами e-mail в течение 3 рабочих дней*
Часы работы: с Пн по Пт с 8:30 до 17:30 по московскому времени.
или
Посмотреть возможности крупнейшей электронной библиотеки "Техэксперт" - более 8 000 000 документов!



