
Вы нашли документ, содержащийся в электронной базе документов - "ТЕХЭКСПЕРТ"!
Кран гусеничный Manitowoc Model 999
ГУСЕНИЧНЫЙ КРАН MANITOWOC MODEL 999
Технические характеристики:
Максимальная грузоподъемность, т |
250 |
Длина основной стрелы, м |
88,4 |
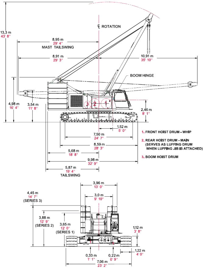
Габаритные размеры:
Грузовысотные характеристики:
Скачать документ нельзя - можно заказать Бесплатно! 1 документ
Документ будет отправлен на указанный Вами e-mail в течение 3 рабочих дней*
Часы работы: с Пн по Пт с 8:30 до 17:30 по московскому времени.
или
Посмотреть возможности крупнейшей электронной библиотеки "Техэксперт" - более 8 000 000 документов!
Подписка на полную версию «Указателя стандартов» через ФГУП «Стандартинформ» стоит 20 000 рублей.
При заказе демонстрации Вы получите доступ к его электронной версии совершенно бесплатно!



